
Mikołeska 2022
Nowa inwestycja firmy na rok 2022. Dom jednorodzinny wolnostojący, realizowany w jednej z najatrakcyjniejszych miejscowości, jaką jest Mikołeska. Nieruchomość znajduje się przy lesie. Bardzo duża działka o powierzchni 2000 m2 w formie kwadratu. Zakończenie budowy planowane na rok 2022 - 2023.
Budynek o powierzchni użytkowej 234 m2.
Działka o powierzchni 2000 m2.
Miejscowość: Mikołeska woj. Śląskie
Numer działki: 387/12
Lokalizacja: 50.533613, 18.826208
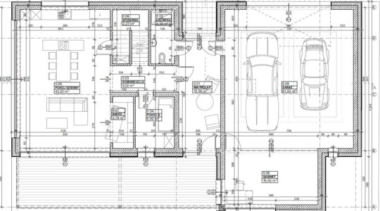
Parter:
Wiatrołap - 15,56 m²
Łazienka- 4,39 m2
Komunikacja- 9,02 m2
Pokój G. - 6,92 m2
Pokój dzienny - 43,20 m2
Spiżarnia - 3,27 m2
Aneks - 3,78 m2
Gabinet - 16,62 m2
Garaż - 70,0 m2
Razem parter - 174,30 m²
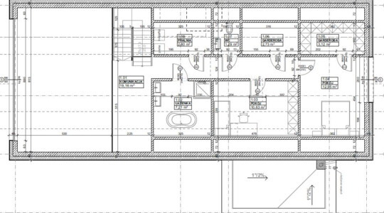
Piętro:
Komunikacja - 19,01 m²
Pokój - 10,63 m²
Pokój - 13,00 m²
Garderoba - 3,12
Garderoba - 2,73
WC - 1,29 m2
Pralnia - 2,80 m2
Razem piętro:59,82 m²
Każde pomieszczenie posiada znakomite doświetlenie dzięki dużym przeszkleniom.
Budynek posadowiony na solidnej płycie fundamentowej w celu najlepszego zabezpieczenia, ściany wznoszone w technologii silikatu zwieńczone słupami żelbetowymi oraz stropem monolitycznym.
Zapraszam do kontaktu.